PROGRAMME
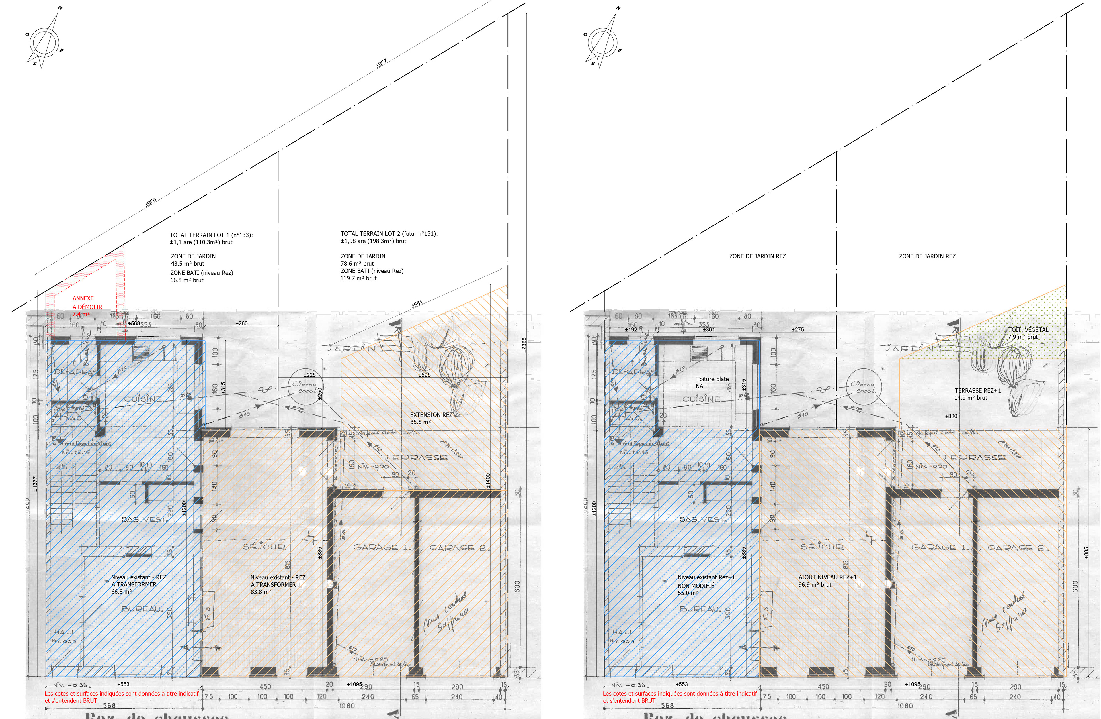
Le projet consiste en la division d'un terrain en deux parcelles distinctes et en la transformation de deux garages et d'un séjour en un immeuble de rapport.
DESCRIPTIF
Le but de cette étude était de trouver tout le potentiel que le bien avait à offrir avant achat. L'idée était de diviser la parcelle existante en 2 parcelles distinctes; de développer de nouvelles unités de logements au-dessus des volumes existants (volume jaune sur l'étude volumétrique) et de réorganiser la maison conservée.
SURFACE
+/- 450 m2
CLIENT
Investisseur privé
LOCALISATION
Uccle – Région bruxelloise
STATUT
Faisabilité
AUTEUR(S)
Hey Archi
CONSULTANTS
n/a
+/- 450 m2
CLIENT
Investisseur privé
LOCALISATION
Uccle – Région bruxelloise
STATUT
Faisabilité
AUTEUR(S)
Hey Archi
CONSULTANTS
n/a
Découvrez d'autre projets...